Casa indipendente in vendita

Colorno, Mezzano Rondani - Chiesa
€ 340.000
Prezzo aggiornato
5 locali 5 locali
350 Mq 350 Mq
2 bagni 2 bagni

Casa indipendente in vendita

Colorno, Mezzano Rondani - Chiesa

Descrizione annuncio

Immersa in una tranquilla zona residenziale di Sacca/Mezzano Rondani, questa casa indipendente su due livelli offre ampi spazi abitativi e la perfetta combinazione tra fascino tradizionale e comfort moderno.

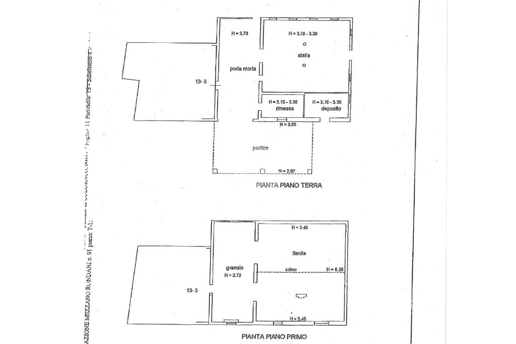
L’immobile si apre su un accogliente ingresso con porticato, che anticipa la qualità degli spazi interni e garantisce un’atmosfera calda e invitante.

La parte padronale si sviluppa su due piani: al piano terra troviamo un luminoso soggiorno, una cucina abitabile e una stanza versatile adatta a studio o sala hobby. Al piano superiore la zona notte comprende due camere matrimoniali e un bagno, garantendo privacy e comfort.

L’ex stalla, ora completamente ristrutturata, aggiunge ulteriore valore all’immobile: al piano terra un grande soggiorno e un’ampia stanza con angolo cottura e bagno, ideale per ospiti o come dependance; al piano superiore troviamo tre camere matrimoniali, perfette per famiglie numerose o per chi cerca spazi flessibili.

Completa la proprietà un garage e giardino privato, spazi esterni che offrono comodità e praticità quotidiana.

Questa soluzione rappresenta un’opportunità rara: una casa indipendente con ambienti generosi, completamente ristrutturata, pronta ad accogliere famiglie e momenti di vita quotidiana senza compromessi.

Mostra tutto

Nelle vicinanze

Trasporto pubblico Trasporto pubblico
Mezzano Rondani
Mezzano Rondani
2,2 Km
Negozi Negozi
Caseificio
2,1 Km
Bar Bar
bar Sport
1,9 Km
Ely Rose cafè
2,1 Km
Ristoranti Ristoranti
da Milietta
80 m
Mostra tutto

Caratteristiche

Rif.:
61141916
Piano:
2 di 2 (Piano su più livelli)
Box:
1
Posti auto:
1
Camere da letto:
3
Arredamento:
Completo
Mostra tutto
Prezzo Prezzo
€ 340.000
Rata mutuo Rata mutuo
€ 1.580 / mese
Spese annue Spese annue
€ 0
Proponi il tuo prezzoProponi il tuo prezzo
Immobile valutato con T·Valuta

Classe Energetica

E
E
E
E
E
E
E
E
E
EP invernale del fabbricato:
EP estiva del fabbricato:
Anno di costruzione:
1970
Riscaldamento:
Autonomo
Tipo impianto:
A radiatori
Tipo alimentazione:
Metano

Prezzo ridotto di €1 (9%%)

Ti interessa visionare l'immobile?

Fissa un appuntamento  Fissa un appuntamento

Richiedi informazioni

Clicca su Leggi per aprire l'informativa
* Questi campi sono obbligatori

Calcola il tuo mutuo

Semplice e senza impegno
Anticipo

( % )
Mutuo

( % )

pochi semplici passi

inserisci i tuoi dati
Questionario completato
Grazie per aver richiesto un appuntamento senza impegno con un nostro Consulente del Credito e Assicurativo.

Hai inserito correttamente tutti i dati necessari e a breve riceverai una e-mail con un link da convalidare per inviare i tuoi dati.
Affiliato
Mendy Immobiliare Srl
P.zza Della Repubblica, 21 43030 Torrile (PR)

Il nostro staff


  • Vincenzo Mandica
    Affiliato

  • Vincenzo Di Giacomo
    Responsabile

  • Amira Soui
    Coordinatrice
P.zza Della Repubblica, 21 43030 Torrile (PR)
Zona: San Polo-Colorno-Torrile-Vicomero-Gainago-Rivarolo
Mostra su mappa
Orari: Dal lunedì' dalle 9 alle 12.30 e dalle 15 alle 19.30. Sabato dalle 9 alle 12.30 e dalle 15 alle 17
Affiliato
Mendy Immobiliare Srl
P.zza Della Repubblica, 21 43030 Torrile (PR)

2026 Tecnocasa Franchising S.p.A. - P. IVA 08365160152 - Via Monte Bianco 60/A 20089 Rozzano (MI). Ogni agenzia ha un proprio titolare ed è autonoma. Privacy policy | Policy utilizzo | Cookie policy