Casa indipendente in vendita

Colorno, Via Pietro Mascagni
€ 238.000
5 locali 5 locali
200 Mq 200 Mq
2 bagni 2 bagni

Casa indipendente in vendita

Colorno, Via Pietro Mascagni

Descrizione annuncio

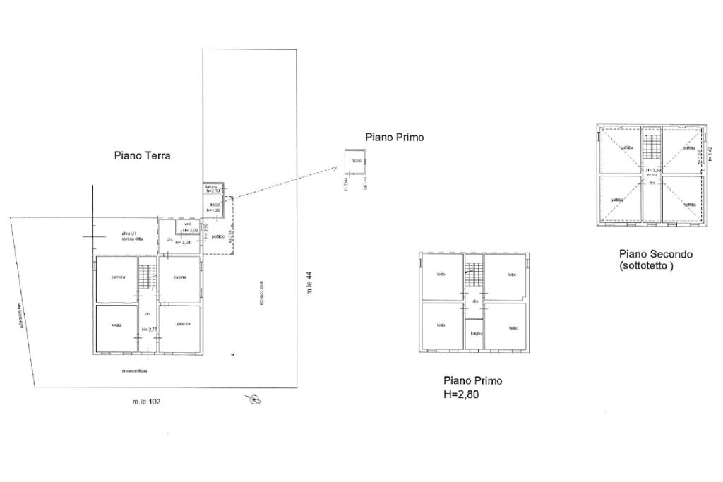
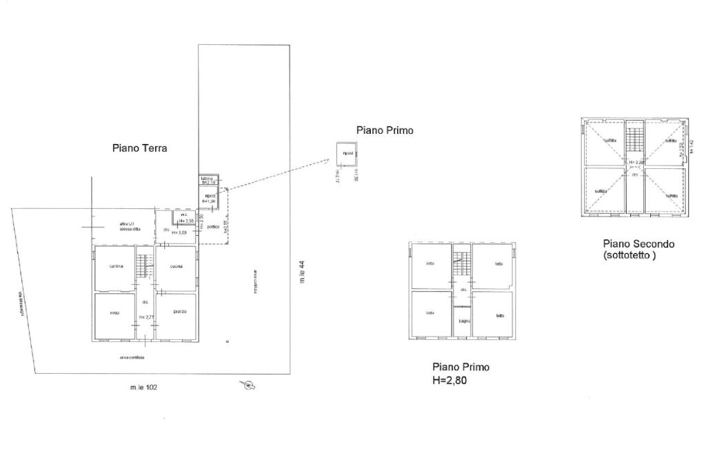
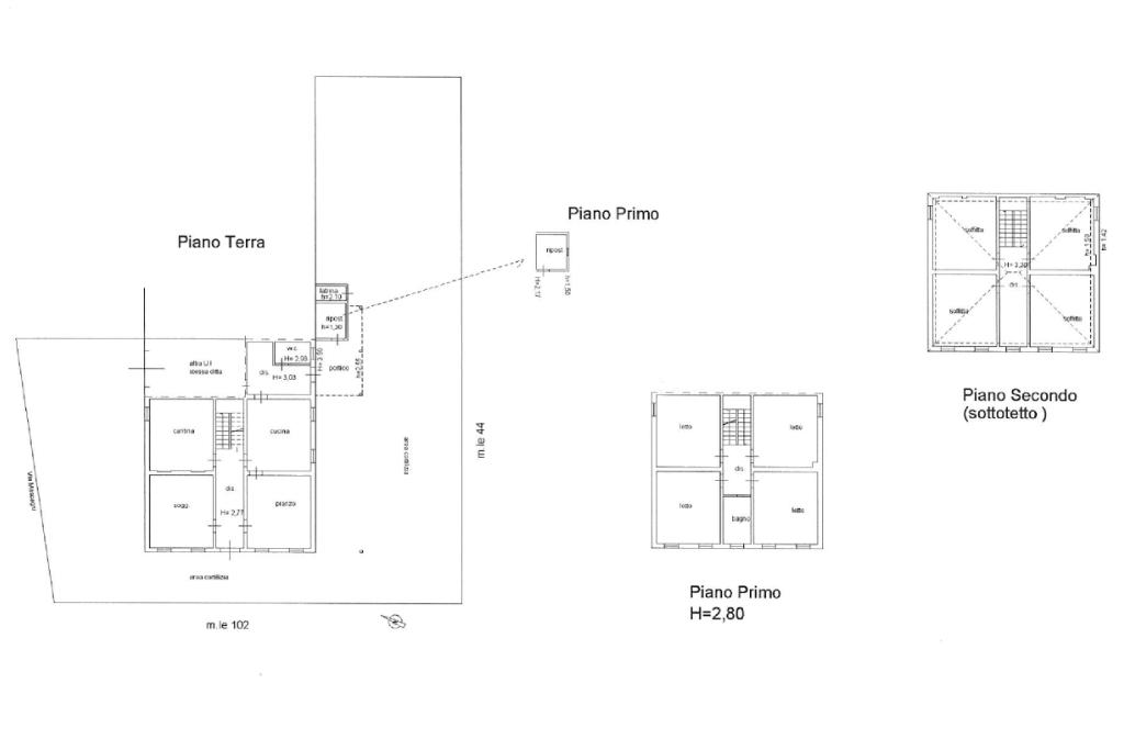
Vicino al centro di Colorno proponiamo in vendita una casa indipendente di circa 200 mq, ideale per chi è alla ricerca di ampi spazi, comfort e ambienti versatili.

L’abitazione si sviluppa su più livelli. Al piano terra troviamo un accogliente soggiorno, una sala da pranzo separata, una cucina abitabile e una stanza jolly perfetta come studio, sala hobby o zona relax. Dalla cucina si accede a un comodo disimpegno ad uso lavanderia con bagno di servizio.

L’immobile è dotato di caldaia nuova, stufa a pellet canalizzata e impianti di riscaldamento recentemente rinnovati. Sono inoltre presenti addolcitore e impianto di osmosi per l’acqua potabile. Al piano terra sono installate le inferriate. La casa è completa di aria condizionata.

Il piano superiore ospita la zona notte, composta da quattro camere da letto e un bagno. Salendo ancora troviamo una mansarda di ampia metratura, suddivisa in quattro stanze, uno spazio aggiuntivo estremamente versatile.

All’esterno la proprietà dispone di un cortile con portico coperto, ideale per pranzi e momenti conviviali all’aperto, oltre a un giardino privato perfetto per il relax.

Completano la proprietà un box auto e un posto auto esterno, elementi fondamentali per la comodità quotidiana.

Una soluzione abitativa perfetta per chi desidera indipendenza, spazi generosi e tranquillità, restando comodo ai servizi del centro di Colorno.

Mostra tutto

Nelle vicinanze

Trasporto pubblico Trasporto pubblico
Colorno
Colorno
670 m
Scuole Scuole
Scuole
820 m
Farmacia Farmacia
Siviero
710 m
Farmacia Siviero
910 m
Ospedali Ospedali
Casa Della Salute di Colorno-Torrile
1,2 Km
Supermercati Supermercati
Conad
1,0 Km
Negozi Negozi
Negozi
590 m
Bar Bar
Bar Punto D'Incontro
2,9 Km
Ristoranti Ristoranti
Vecchio Mulino
550 m
Ristoranti
730 m
AL Vedel
1,4 Km
Mostra tutto

Caratteristiche

Rif.:
61169238
Piano:
2 di 2 (Piano su più livelli)
Box:
1
Posti auto:
1
Camere da letto:
4
Arredamento:
Completo
Mostra tutto
Prezzo Prezzo
€ 238.000
Rata mutuo Rata mutuo
€ 1.122 / mese
Spese annue Spese annue
€ 0
Proponi il tuo prezzoProponi il tuo prezzo
Immobile valutato con T·Valuta

Classe Energetica

G
G
G
G
G
G
G
G
G
EP globale rinnovabile:
305.15 kW h/m² anno
Anno di costruzione:
1970
Riscaldamento:
Autonomo
Tipo impianto:
A radiatori
Tipo alimentazione:
Metano

Ti interessa visionare l'immobile?

Fissa un appuntamento  Fissa un appuntamento

Richiedi informazioni

Clicca su Leggi per aprire l'informativa
* Questi campi sono obbligatori

Calcola il tuo mutuo

Semplice e senza impegno
Anticipo

( % )
Mutuo

( % )

pochi semplici passi

inserisci i tuoi dati
Questionario completato
Grazie per aver richiesto un appuntamento senza impegno con un nostro Consulente del Credito e Assicurativo.

Hai inserito correttamente tutti i dati necessari e a breve riceverai una e-mail con un link da convalidare per inviare i tuoi dati.
Affiliato
Mendy Immobiliare Srl
P.zza Della Repubblica, 21 43030 Torrile (PR)

Il nostro staff


  • Vincenzo Mandica
    Affiliato

  • Vincenzo Di Giacomo
    Responsabile

  • Amira Soui
    Coordinatrice
P.zza Della Repubblica, 21 43030 Torrile (PR)
Zona: San Polo-Colorno-Torrile-Vicomero-Gainago-Rivarolo
Mostra su mappa
Orari: Dal lunedì' dalle 9 alle 12.30 e dalle 15 alle 19.30. Sabato dalle 9 alle 12.30 e dalle 15 alle 17
Affiliato
Mendy Immobiliare Srl
P.zza Della Repubblica, 21 43030 Torrile (PR)

2026 Tecnocasa Franchising S.p.A. - P. IVA 08365160152 - Via Monte Bianco 60/A 20089 Rozzano (MI). Ogni agenzia ha un proprio titolare ed è autonoma. Privacy policy | Policy utilizzo | Cookie policy